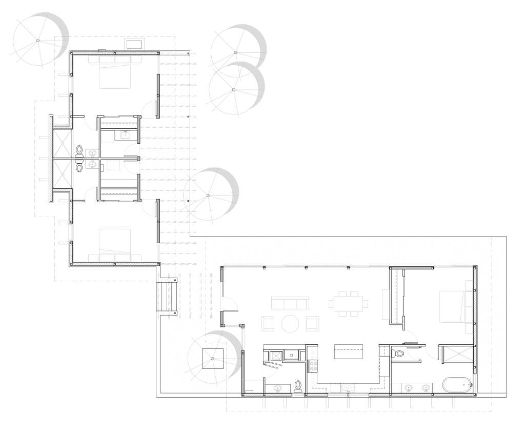
Concrete, Steel & Glass

Status:  Under Construction
Area:  2,000 sf
Location:  Three Rivers, CA
Builder:  Floyd Johnston Construction